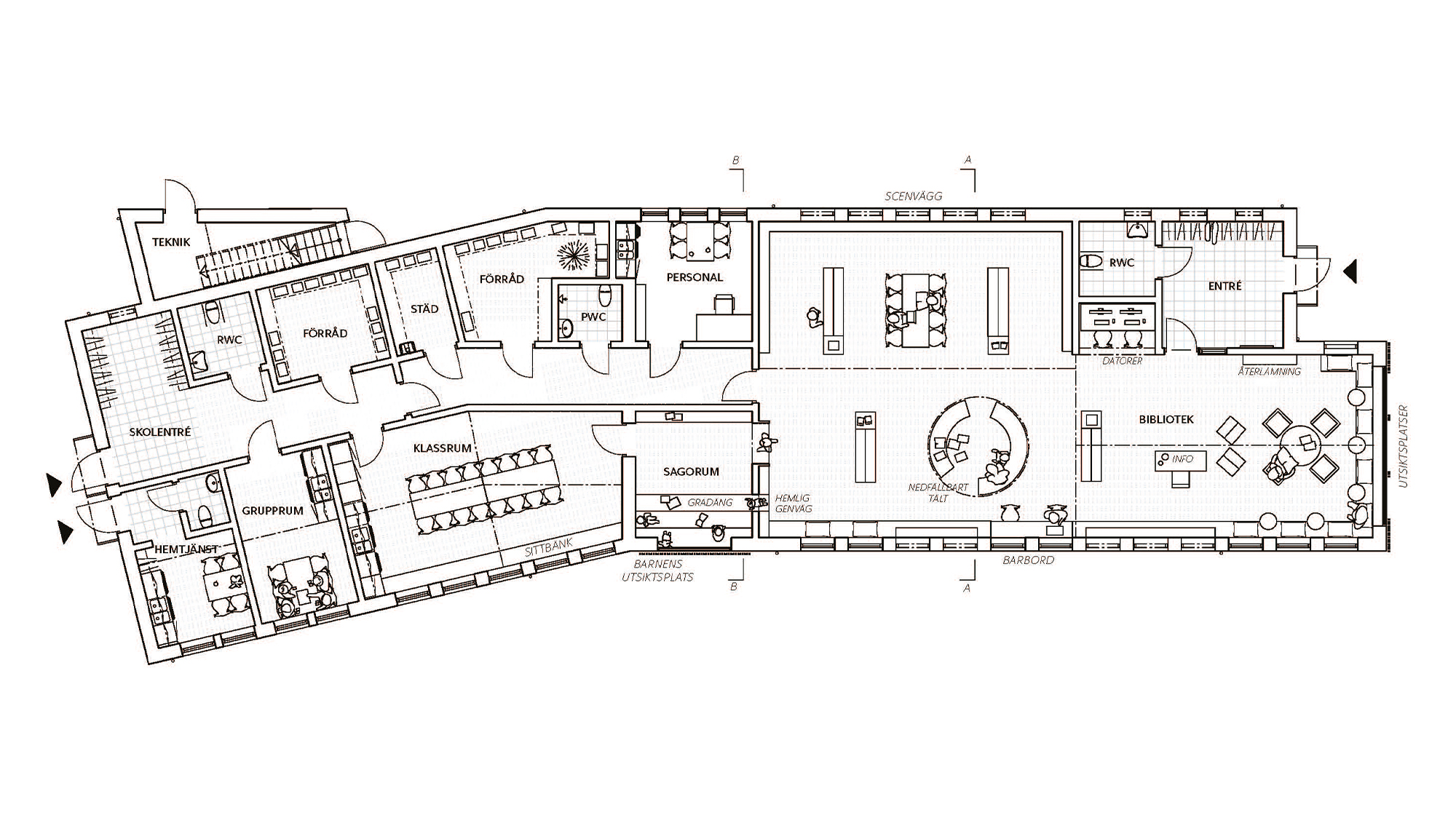
GLIMÅKRA BIBLIOTEK Plats: GlimåkraBeställare: Östra Göinge kommunStatus: Pågående, inflytt 2026Uppdrag: Från skiss till färdig byggnad Till alla projekt Till övriga projekt Adress Norra Kaserngatan 2,291 29 Kristianstad Telefon 044-12 30 70 Mejl info@arkitektgarden.se